Обяви За нас Контакти
Продава ОФИС
град София, Овча купел
ул. Монтевидео
144 000 €
281 639.52 лв.

(1 655 €, 3 236.90 лв./m2)
Не се начислява ДДС
Коригирана в 16:18 на 24 март, 2026 год.
Обявата е посетена 382 пъти.
Площ:
87 m2
Етаж:
Партер от 6
Газ:
ДА
Строителство:
Тухла, Въведен в експлоатация 2024 г.

Описание на имота:


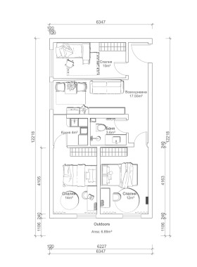
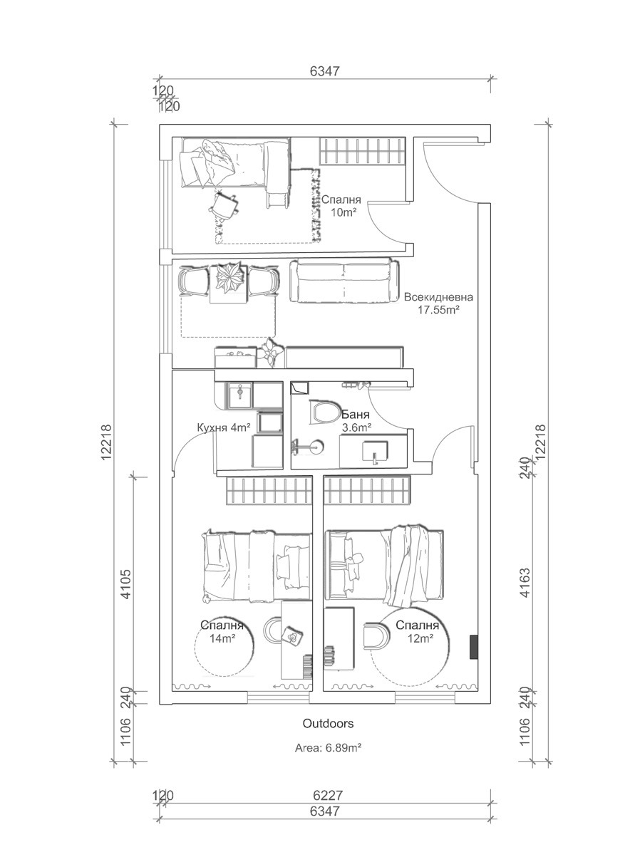
Имот със статут ателие, който може да е преустроен като: апартамент или офис.
250 м. до НБУ

С АКТ 16 от 2024г., на шпакловка и замазка.

Етаж минус едно, поради денивелация, има и изглед във вътрешен двор.

Застроена площ на имота: 72,40 кв.м., заедно с общите части на сграда: 86,60 кв.м.

Разпределение: стая, работно помещение, склад, коридор и санитарен възел.

Може да бъде преустроен:
- в тристаен (има съответни чертежи към офертата).
- апартамент с преходен хол и три отделни равноценни стаи (спални), което от гледна точка на близост до НБУ (250 метра) може да направи имот с голям инвестиционен потенциал.

Два прозореца в работна стая изглеждат в английски двор, другите два прозореца в холна стая изглеждат в прекрасен вътрешен озеленен двор с малка денивелация.

Предвидена газификация.

Близо до спирки на автобуси 73, 59, 60. 15 минути пеша до метростанция Мизия, 7 минути пеша до Супермаркет.

ОФЕРТА 0489 в агенция www.realtyarthouse.com
Ключ в агенция.

Информация и огледи: Лариса Николаева +359 87 757 24 21.
Особености
Тухла
Асансьор
За контакт:
0877572421
Брокер:
Лариса Николаева
+359 87 757 24 21
Офис: София, бул. Витоша 15
Още оферти от брокера: Продава | Дава под наем | Купува | Наема
Агенция:
ИНТЕР АРТ ХАУС - АГЕНЦИЯ ЗА НЕДВИЖИМИ ИМОТИ - РИЕЛТИ АРТ ХАУС
087 757 24 21; 087 757 24 41;
ИНТЕР АРТ ХАУС - АГЕНЦИЯ ЗА НЕДВИЖИМИ ИМОТИ - РИЕЛТИ АРТ ХАУС logo
Медал за прослужено време
В imot.bg от 2016 г.
interarthouse.imot.bg
Адрес:
област София, гр. София, гр. София, бул. 'Витоша' 15
http://realtyarthouse.com
ИЗПРАТИ ЗАПИТВАНЕ
ИЗПРАТИ ЗАПИТВАНЕТО

Продава ОФИС
град София, Овча купел
ул. Монтевидео
Обява: 1g176190237834379

144 000 €
281 639.52 лв.
(1 655 €, 3 236.90 лв./m2)

Не се начислява ДДС
ЗАПАЗИ ОБЯВАТА

Местоположение: град София, Овча купел, ул. Монтевидео

Допълнителни данни за имотите в района и сравнение с други райони

Покажи

Период

и 4 месеца

* Средните цени са определени чрез медианна стойност